Skip to content
HOME
ABOUT
SERVICES
PROJECTS
OUR TEAM
CONTACT US
Menu
HOME
ABOUT
SERVICES
PROJECTS
OUR TEAM
CONTACT US
PROJECT 1
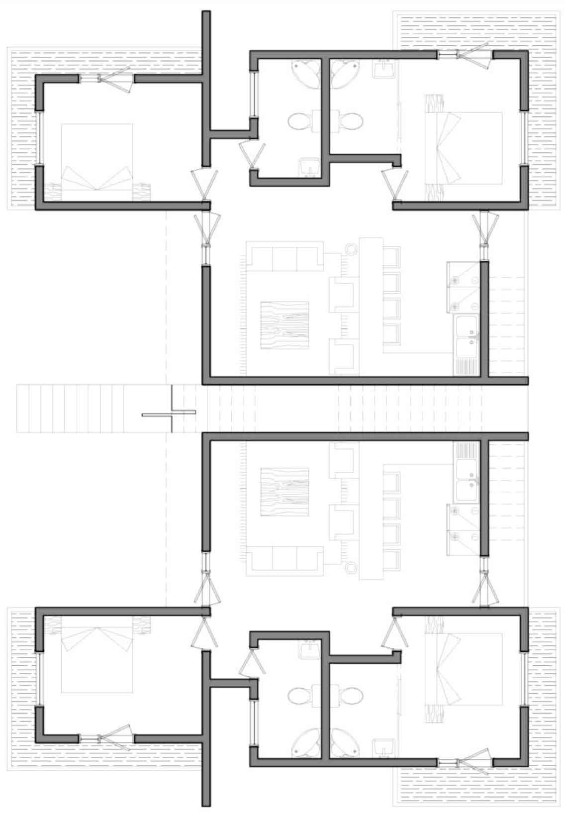
Umuraza Apartment
location
Kigali Kicukiro Kanombe
client
Umuraza Landrada
Status
Pending
Service
Architectural design and permit application
Previous
Next
return to all projects